An open plan contemporary office to stimulate the mind and inspire...

Office: Spring Architects

The client operate in a pivotal area of nuclear fuel supply chain which ends with the sustainable generation of electricity for consumers around the world. The supply chain itself can be subdivided into four key processes: mining, conversion, enrichment and fabrication.

I am unable to disclose the name and the location of the client
due to restrictions placed by the United Kingdom Ministry of Defence.

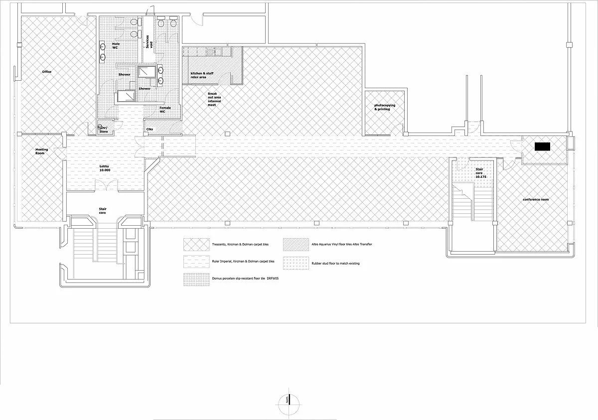
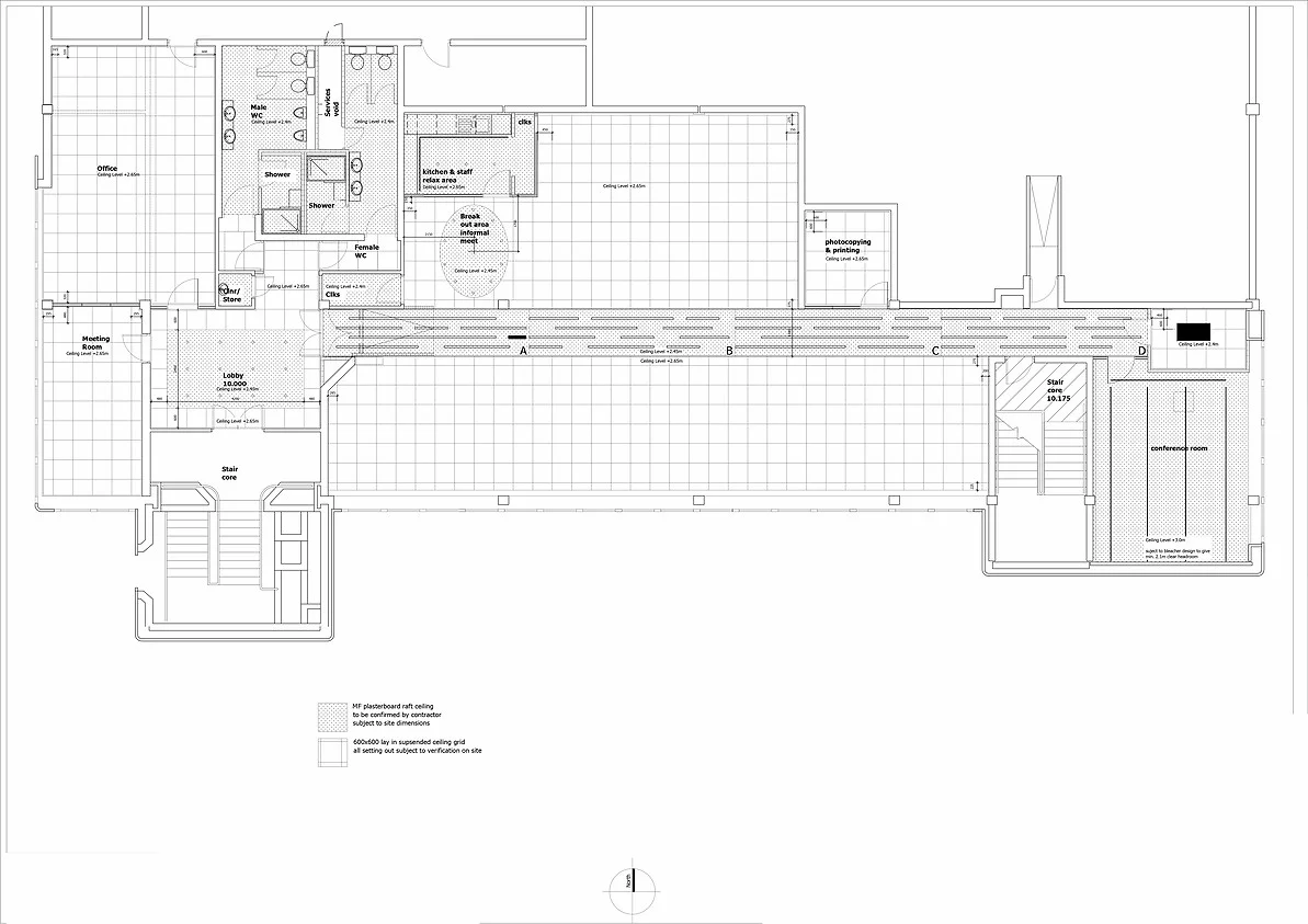
The brief was to refurbish and design a new office space, meeting rooms, kitchen, conference room and male/female WCs. The client specified the interior space to be high quality and furniture/layout to meet their needs within the budget given.